Eigentumswohnung frei ab dem 01. Mai 2026, Ratmerstein 1, 59929 Brilon PROVISIONSFREI!
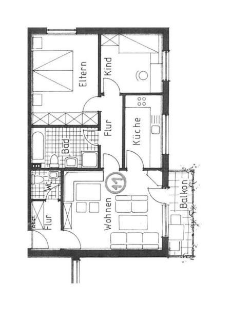
66,84 m², 3 Zimmer, Küche, Bad, Gäste-WC, Balkon und Keller
Besichtigungstermine können erst ab Anfang Mail durchgeführt werden!!
Diese Wohnung mit Weitblick über Brilon und Balkon befindet sich in der 2. Etage eines gepflegten Mehrfamilienhauses.
Eine neue Wohnungseingangstür ist im Preis inbegriffen.
Schulen, Kindergarten und Einkaufsmöglichkeiten, Marktplatz Brilon, sowie Busanbindungen sind fußläufig erreichbar.
Eine neue Gaszentralheizung mit komplett neuer Verrohrung nebst neuen Heizkörpern wurde 2014 eingebaut.
Die monatliche Erhaltungsrücklage beträgt 51,67 €. Diese ist zuzüglich zum Hausgeld, 269,- € (im Hausgeld sind Abschläge für Heizung und Wasser enthalten) monatlich noch zu zahlen.
Die angesparte Erhaltungsrücklage zum 31.12.2025 beträgt ca. 1.792,- € und ist im Preis inbegriffen.
Energieendbedarf dieses Gebäudes: 117,20 kWh/(m²*a) (lt. vorliegendem Energieausweis)
Ein Stellplatz für 5.000,- € kann zum o.g. Kaufpreis dazuerworben werden.
Besichtigungstermine können erst ab Anfang Mail durchgeführt werden!!
Zurzeit ist die Wohnung bis zum 30.04.2026 vermietet und danach im Leerstand.
